共生,从树开始:景德镇川上行-景仰书院

▲香樟林和茶阁 摄影:陈颢

▲梧桐院与木回廊之间 摄影:陈颢
景仰书院是位于景德镇陶溪川工业遗产保护更新片区中的一组宁静院落。整体建筑布局从最大化保留场地上的一片老树开始,针对原有的仓库、宿舍和配电房进行保留、修缮和局部加建。我们希望新的空间系统能够尊重时间的痕迹,与现状遗存相互缠绕、迭代,共同塑造场所的新生命

▲概念设计草图 ©直向建筑

▲东入口保留树木与院墙 摄影:陈颢

▲从入口折廊看向木回廊 摄影:陈颢

▲梧桐院子冬景 摄影:陈颢

▲历史客房前院 摄影:陈颢
01
起点
2019年春,经由清华大学张杰教授引荐,我们去到陶溪川开始了第一次场地踏勘。
那天下着小雨,场地被一大片工地包围,特别泥泞。在现场,我们见到了这块地的业主刘子力。作为景德镇多个国营瓷厂曾经的老厂长,他在2012年陶溪川这块地(原宇宙瓷厂和陶瓷机械厂)挂牌出让时,专程赴清华大学邀请张杰教授团队主持陶溪川保护更新再利用的规划设计工作。我们介入时,他们已经合作了七、八年,陶溪川文创街区一期的建设已经完整呈现。

▲场地及周边的原始建筑体量 ©直向建筑

▲项目及场地鸟瞰 摄影:直向建筑

▲东立面冬景 摄影:徐俊
相比园区里鱼骨状排列的大尺度厂房,我们场地的面积并不大,是一片荒置的水泥地堆料场,不太起眼。南边一长条红砖仓库有些破败,一旁立着两根烟囱,一灰一红,有点基里科(Chirico)画里的味道。北边是一排空置的宿舍和配电房,里面还有些电柜没搬走。
东边围墙里外有个差不多两米高的土坎,上面密布着很高的杂树,有青铜和木荷。西边有一棵老梧桐,经过冬天叶子都落了,透着几分萧瑟的感觉。场地中心是一片香樟林,还是绿的,被老房子围合了起来。这些树历经时间,甚至和墙长在了一起,某种静谧的氛围已经存在。


▲场地原貌 摄影:直向建筑
02
从树开始
我们的直觉判断,应该让树成为每一个空间的特质。一开始就决定保留的这些老树和老房子,为我们提供了充分可依据的设计线索,新的空间格局也逐渐变得清晰。
我们选择“院子”和“廊子”作为主要的空间类型。树冠相触的香樟林被一个新的双层木回廊包裹。廊子底层架空,二层完全通透,形成一个安静的书院氛围,充当着整个场所的“精神领袖”。

▲概念设计草图 ©直向建筑

▲建筑改造模型示意 ©直向建筑

▲木回廊 摄影:陈颢

▲从木回廊看向香樟林 摄影:陈颢


▲从客房区连廊透过木回廊看向香樟林 摄影:陈颢
围绕西边的老梧桐,我们放置了一个向内打开的砖院,承载各种会议功能。老梧桐四周的陶砖是接近土壤的暖褐色,比一般的砖要薄,和景德镇当地的烧窑的砖尺寸一致。

▲梧桐院子秋景 摄影:郑钰凝

▲砖墙局部 摄影:偏方摄影
我们将客房集中解决,三层高的体量架于北面老房子上方,单走廊面向外街采光,阳台朝着南面的香樟林打开,看向敞阔的城市远景和连绵山脉。南面老仓库的山墙和贴着的泡桐像一个孤岛被完整保留加固,其余整体落架大修。为满足新的功能,我们将它的屋顶提升了1米,新老高度产生的重檐缝隙处便有了天光和树影。屋架新用了钢桁架,以延续原始木桁架的形式。空间的东西两段变成了大堂和餐饮空间,可以同时对外开放。

▲客房阳台与钢雨棚 摄影:DONG建筑影像

▲历史客房前院 摄影:陈颢

▲历史客房入口前院 摄影:偏方摄影
在我们眼中,相对于一幢建筑,这是一个由多个单元组成的“城市”。针对周围不同的城市片段,它在敏感地传递着不同的信息和态度。
在东边,建筑呈现为一个匍匐的姿态——树林在冬天像是通透的屏风,在夏天像是一片浓郁而柔软的墙,下方能看见由黑色钢柱顶起的折廊檐口和几段水平向拉长的院墙。这个低矮的入口折廊顺着2米高差的缓坡跌落、下沉,穿越密林伸入大堂外的门廊。老的树干和新的钢柱共同形成了新的空间秩序。

▲入口廊檐和混凝土树池 摄影:偏方摄影

▲东南角街景 摄影:偏方摄影

▲入口下沉折廊 摄影:陈颢

▲从入口老树看向木回廊 摄影:陈颢
在西边,建筑顶部悬挑呈现一个昂扬的状态,新老体量边界前后拉伸,在城市街道形成半围合的户外空间,将为未来的公共活动提供多种空间场景的可能性。

▲西北角街景 摄影:陈颢
03
层与秘境
“层”对于这个场所来说是一个很重要的概念,它包含空间的尺度和氛围、建筑之间的距离,以及院子和院子之间的过渡和连接。我们希望实现一个结果——人们从外围城市的三个入口进入,穿过建筑、廊子和缝隙,经历不同的尺度,高低和错落,最终到达这片安静的香樟林,它如“秘境”一般被藏在了空间格局的最里层。

▲从北侧街道架空层看向香樟林 摄影:陈颢

▲木回廊与餐厅檐廊 摄影:陈颢

▲木回廊二层西侧 摄影:陈颢

▲从二层回廊看向香樟林 摄影:陈颢
林子里还留了一个“庙”——茶阁,作为建筑群中尺度最小的体量,前身是一个破败的工棚,形制和表皮被完全复刻。人们漫步于外围街道,不经意间甚至能瞥见它的一角。

▲茶阁 摄影:偏方摄影
这些特殊设置的“层”经由开洞、架空和穿透的操作,形成场所内部“层”与“层”叠加的化学反应。人们顺着回廊行进,或是在不同的流线之间转换,都是在穿越空间的“层”,光和风、视线和声音也随之变换,成为被身体感知的体验。

▲ 画廊前庭 摄影:偏方摄影

▲公共客厅 摄影:偏方摄影

▲标准双床房 摄影:偏方摄影
04
手术刀
建筑体量的边界和墙体定位,在设计一开始就是以退让树为前提决定的。随着后期逐步有了准确的测绘,包括树根、树冠的真实尺寸和枝干走向等信息,设计也在不断被矫正和进行主动调整。比如在方案阶段,我们把客房体量最东边的一角切掉,以3间客房的代价留下了场地东北角最大的一棵梧桐;为了退让砖院里梧桐朝北发展的树冠,我们拿掉了内院的实墙,将楼梯间向天打开,天井范围也随之扩大。

▲从香樟林看向梧桐院 摄影:偏方摄影

▲从梧桐院看向香樟林 摄影:偏方摄影
树木的保护工作需要提前对施工难度进行预判。例如,留够地下室开挖针对树木的安全退距;选择胶合木作为回廊结构,以轻量化的干操作作业方式降低对树木的干扰。施工开始后,我们的驻场建筑师需要时刻紧盯各类器械的施工过程,避免破坏树冠;在混凝土浇筑阶段,需要临时固定树枝,避让脚手架,甚至临时修改模板轮廓,让树枝尽量完整保留。模数化的预制胶合木构件,也能让我们在施工现场进行最终的设计修改,切掉梁头或是椽子,让屋顶轮廓灵活进出退让,枝干便得以穿过建筑继续生长。
很多时候,建筑师像是拿着手术刀在现场进行各种精准操作,留下了一些很难被“设计出”的细节。

▲从大堂檐廊下看向木回廊 摄影:陈颢

▲穿过木回廊的老樟树 摄影:偏方摄影

▲木回廊二层北侧 摄影:偏方摄影
05
结语
五年过去了,今天回想起来,这些空间操作就是一次“借力发力”。从场地自身具体而真实的线索出发,我们每一次的设计决定都会或多或少受到现场条件的限制,但同时也正因为这些限制受到启发,使设计不再那么“主动”,而是在主动和被动之间捕捉那一条敏感的线。

▲餐厅 摄影:陈颢

▲大堂休息区 摄影:偏方摄影



▲历史客房 摄影:偏方摄影

▲从客房阳台看向香樟林 摄影:陈颢

▲从客房阳台看向香樟林与城市远景 摄影:陈颢
06
技术图纸

▲总平面图 ©直向建筑

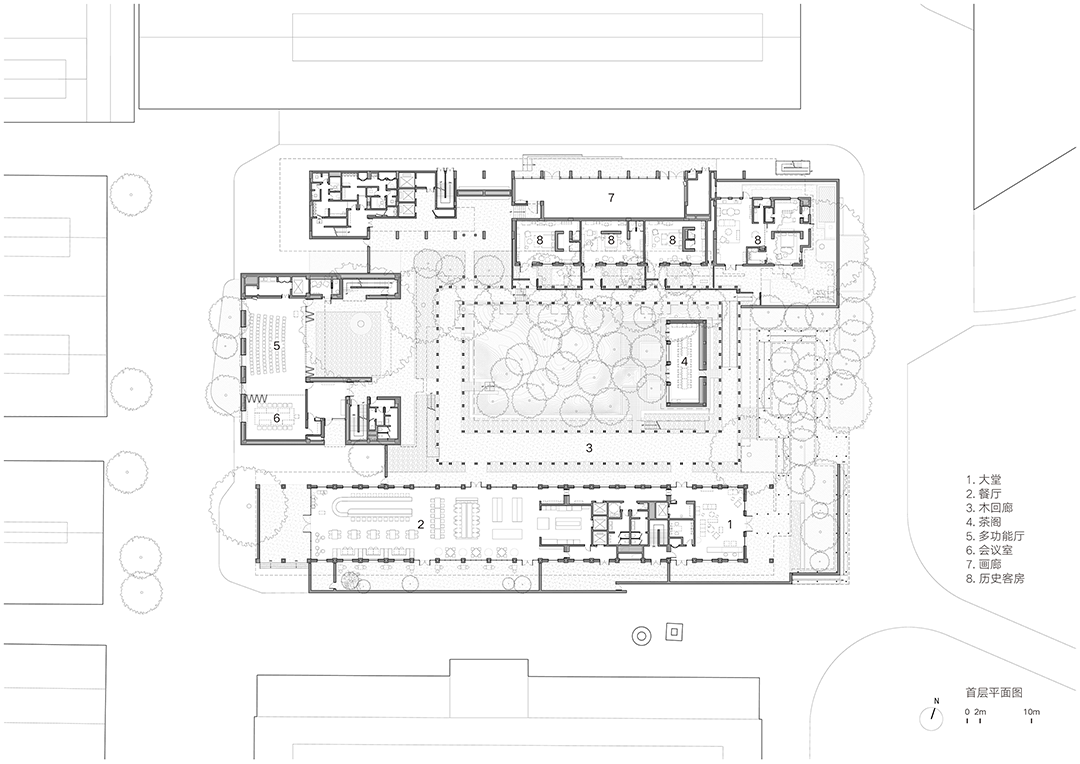
▲首层平面图 ©直向建筑

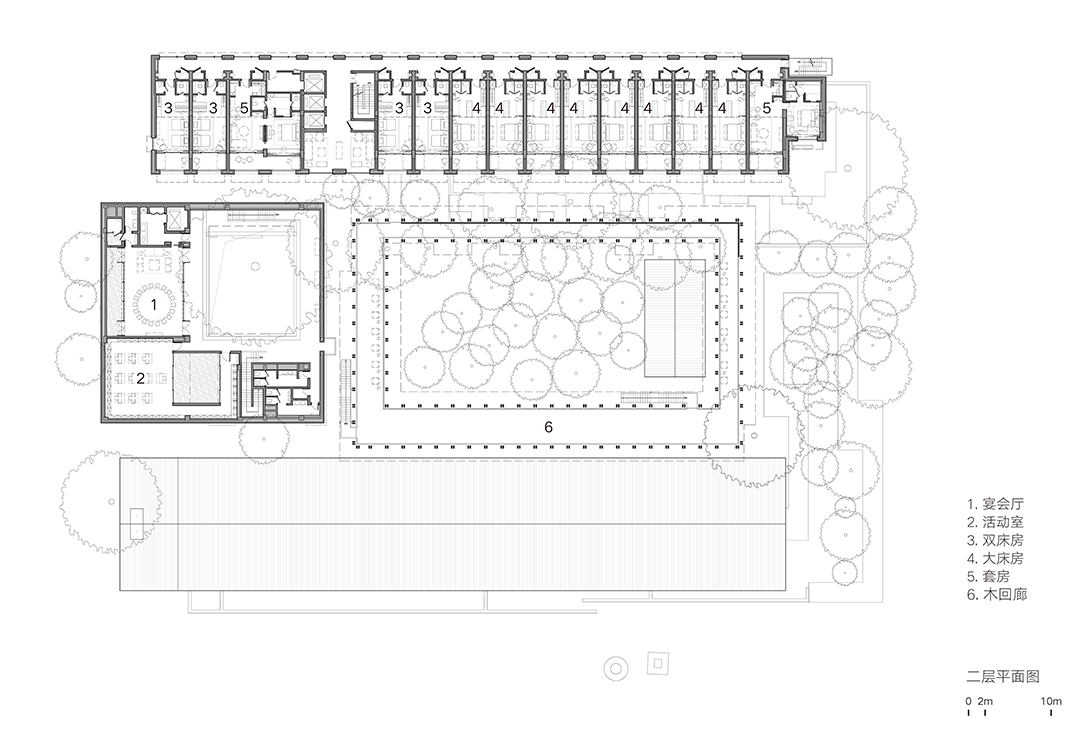
▲二层平面图 ©直向建筑

▲屋顶平面图 ©直向建筑


▲剖面图 ©直向建筑






